Podobne wpisy
Dom o powierzchni 100 m2
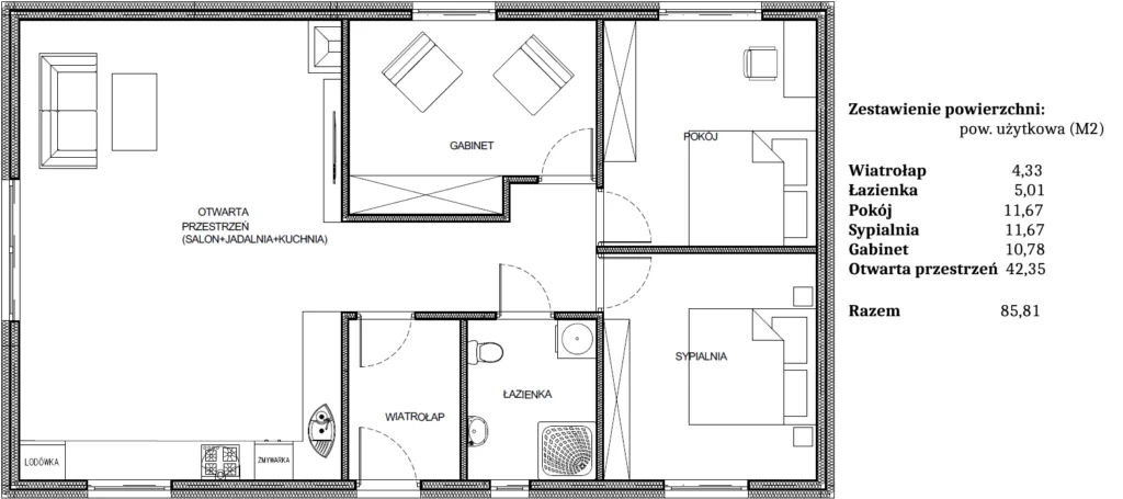
PrzezGrzegorzOferta cenowa nie jest wiążąca i nie stanowi mocy prawnej.
Dom o powierzchni zabudowy 50 m2
PrzezGrzegorzPowierzchnia użytkowa 37,5 m2 Oferta cenowa nie jest wiążąca i nie stanowi mocy prawnej.
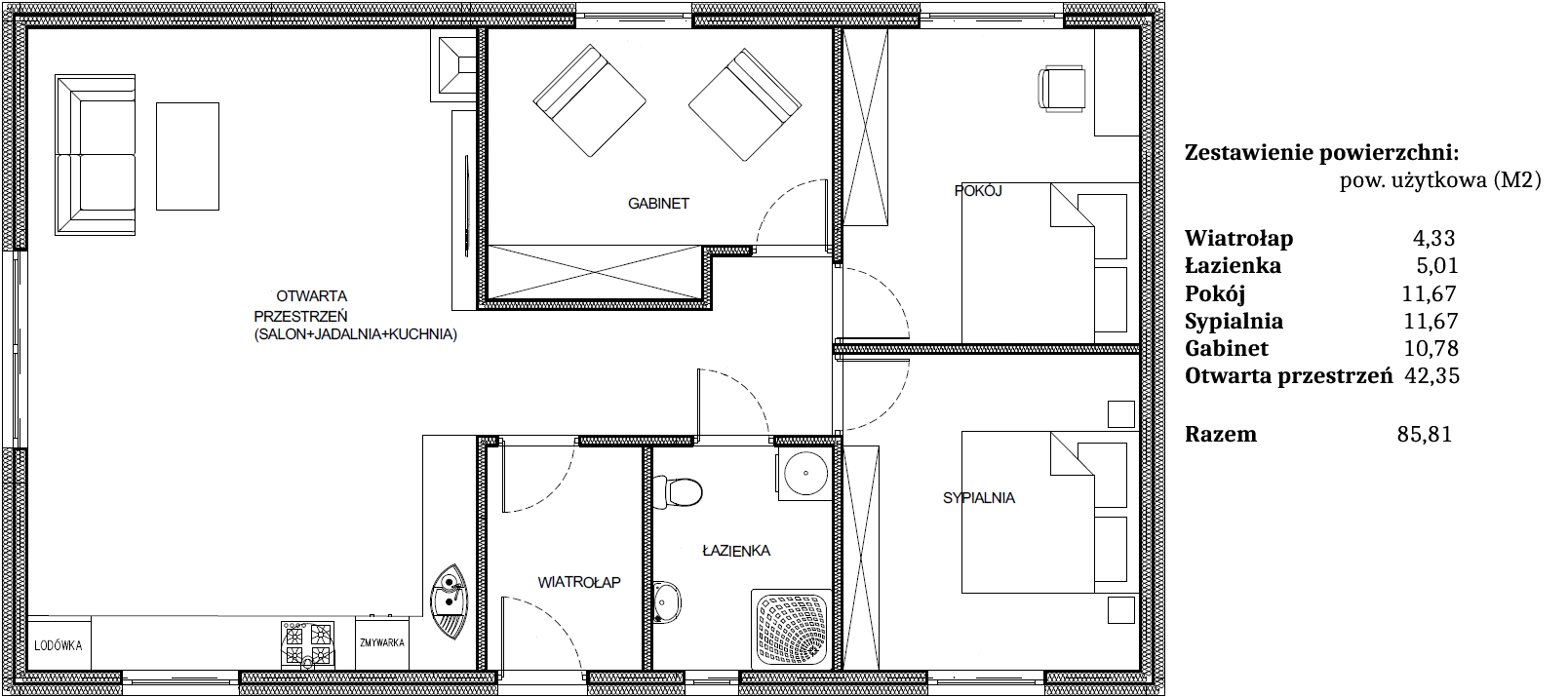
Oferta cenowa nie jest wiążąca i nie stanowi mocy prawnej.
Powierzchnia użytkowa 37,5 m2 Oferta cenowa nie jest wiążąca i nie stanowi mocy prawnej.